Cylinder sleeve removal / replacement
- Youngblood
-
- Offline
- Junior Member
-
- Posts: 21
- Thanks: 4
Re: Cylinder sleeve removal / replacement
2 years 3 months ago
Has anyone the measurements between all the cylinders? I’ve just drawn up the six liners inline so I can see how much they need to be off set. And will be able to calculate different off sets.
Please Log in or Create an account to join the conversation.
- Kawboy
-
Topic Author
- Offline
- Sustaining Member
-
- Posts: 3216
- Thanks: 1181
Re: Cylinder sleeve removal / replacement
2 years 3 months agoPlease Log in or Create an account to join the conversation.
- Youngblood
-
- Offline
- Junior Member
-
- Posts: 21
- Thanks: 4
Re: Cylinder sleeve removal / replacement
2 years 3 months ago - 2 years 3 months ago
Thank you, attached is a diagram of two standard bores the bit to look at is the milled flat edge dead centre to the bores leaving 1.785mm from the wall to the milled flat, 66mm measures 1.55mm, 69mm breaks into the wall leaving about 0.650mm?? with a 2.5mm off set. I will play around a bit more over the weekend.
Last edit: 2 years 3 months ago by Youngblood.
Please Log in or Create an account to join the conversation.
- Kawboy
-
Topic Author
- Offline
- Sustaining Member
-
- Posts: 3216
- Thanks: 1181
Re: Cylinder sleeve removal / replacement
2 years 3 months ago
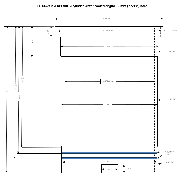
Trying something else here. I wish I could upload Word Docx but the site won't accept them. the drawing i created using Word since I don't have a decent drawing app to work with.
this time, I printed the Word doc drawing and then took a picture of the print and saved as a JPEG. Maybe this one is clearer and you can read the numbers. Fingers crossed.
this time, I printed the Word doc drawing and then took a picture of the print and saved as a JPEG. Maybe this one is clearer and you can read the numbers. Fingers crossed.
Please Log in or Create an account to join the conversation.
- Youngblood
-
- Offline
- Junior Member
-
- Posts: 21
- Thanks: 4
Re: Cylinder sleeve removal / replacement
2 years 3 months ago - 2 years 3 months ago
Fusion 360 is free and doesn't take to long to learn and theres loads of YouTube programs to help you on your way.
And I can't read the measurements very well sorry.
And I can't read the measurements very well sorry.
Last edit: 2 years 3 months ago by Youngblood.
The following user(s) said Thank You: Kawboy
Please Log in or Create an account to join the conversation.
- Youngblood
-
- Offline
- Junior Member
-
- Posts: 21
- Thanks: 4
Re: Cylinder sleeve removal / replacement
2 years 3 months ago - 2 years 3 months ago
From Gert Roewer: Looking at the cylinders from the top. #1 cylinder is offset to the left, ie. "Away " from #2. Cylinder #3 is offset to the right, ie. also "Away " from #2. Cylinder #4 is offset to the left ie. "Away " from #5. Cylinder #6 is offset to the right from #5 also being moved "Away " from #5. The purpose of all this is to increase the bore spacing to allow larger diameter sleeves to be fitted and still have sufficient metal on the deck between the cylinders to facilitate sealing by the head gasket. Off set is 1.5mm.
1642cc block in photo
1642cc block in photo
Last edit: 2 years 3 months ago by Youngblood.
Please Log in or Create an account to join the conversation.
Moderators: scotch
Time to create page: 0.179 seconds
